Skip to main content Skip to footer content

Ihr Mieter genießt die Dachterrasse!

21335 Lüneburg / Oedeme, Etagenwohnung zum Kauf

Objektdaten

Objekt ID
3224
Objekttypen
Etagenwohnung, Wohnung
Adresse
21335 Lüneburg / Oedeme
Etage
2
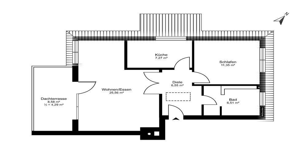
Wohnfläche ca.
61,53 m²
Nutzfläche ca.
9,91 m²
Zimmer
2
Heizungsart
Zentralheizung
Baujahr
2004
Zustand
gepflegt
Status
vermietet
Stellplätze gesamt
1
Stellplatz
1 Stellplatz
Käufer­provision
3,57 % inkl. ges. USt.
Hausgeld
331 EUR
Kaufpreis pro m²
4.209,33 EUR
Nettorendite (Ist)
2,72 %
Mieteinnahmen (Ist)
7.032,00 EUR pro Jahr
Kaufpreis
259.000 EUR

Ihr Ansprechpartner:

Sabine Wenzel

Objekt ID: 3224

Objekt­beschreibung

Beschreibung

Diese attraktive 2-Zimmer im beliebten Lüneburger Stadtteil Oedeme verbindet stilvolles Wohnen mit einer sicheren Kapitalanlage. Sie befindet sich im Staffelgeschoss eines gepflegten Mehrfamilienhauses mit nur sechs Parteien und besticht durch ihre gelungene Kombination aus Komfort und Gemütlichkeit.

Das Highlight der Wohnung ist die großzügige Dachterrasse in sonniger Süd-West-Ausrichtung, die den idealen Platz zum Entspannen und Genießen bietet. Eine Einbauküche sowie ein helles Badezimmer mit Dusche, Fenster und Waschmaschinenanschluss runden das attraktive Gesamtbild ab.

In den letzten Jahren wurden wichtige Modernisierungen durchgeführt: 2022 erhielt die Fassade einen frischen Anstrich, 2025 wurde das Herzstück der Heizung, der Wärmeerzeuger, erneuert. Darüber hinaus ist der Dachboden bereits für einen möglichen Ausbau vorbereitet und eröffnet zusätzliche Gestaltungsmöglichkeiten.

Zur Wohnung gehören ein eigener PKW-Stellplatz, ein privater Kellerraum sowie die Nutzung eines gemeinschaftlichen Fahrradkellers und Trockenraums.

Die Wohnung ist zuverlässig vermietet und erzielt eine jährliche Kaltmiete von 7.032 €, was sie zu einer attraktiven Kapitalanlage macht.

Lage

Diese schöne Eigentumswohnung im 2. Obergeschoss liegt im beliebten Lüneburger Stadtteil Oedeme, einer ruhigen und grünen Wohngegend im Süden der Hansestadt. Das Wohnumfeld ist geprägt von gepflegten Mehrfamilienhäusern sowie Ein- und Zweifamilienhäusern und bietet eine angenehme, familienfreundliche Atmosphäre.

Die Versorgung des täglichen Bedarfs ist durch nahegelegene Supermärkte, Bäcker, Apotheken und Ärzte gewährleistet. Schulen, Kindergärten sowie diverse Freizeit- und Sportangebote befinden sich ebenfalls im Stadtteil oder in unmittelbarer Umgebung.

Die historische Lüneburger Innenstadt mit ihren vielfältigen Einkaufsmöglichkeiten, Restaurants und kulturellen Angeboten ist in wenigen Minuten mit dem Fahrrad oder dem Bus erreichbar. Eine sehr gute Anbindung an den öffentlichen Nahverkehr ist durch verschiedene Buslinien gesichert. Über die B4 sowie die A39 besteht zudem eine schnelle Verbindung nach Hamburg und Uelzen.

Die Lage kombiniert ruhiges Wohnen im Grünen mit einer ausgezeichneten Infrastruktur und der Nähe zur Lüneburger Altstadt.


Weitere interessante Wohnungen zum Kauf

21335 Lüneburg Details

Traumhafte 3-Zimmer Wohnung im Herzen der Stadt

21339 Lüneburg Details

Appartement mit Weitblick am Kreideberg

Kontakt

SALLIER Immobilien e.K.
Auf dem Meere 47
21335 Lüneburg

Tel: 04131 24200
Fax: 04131 2420-10
immobilien@sallier.de

Schreiben Sie uns

    * Pflichtfelder