Skip to main content Skip to footer content

Steinweg Quartett – 2,5-Zimmerwohnung mit Sonnenbalkon

21365 Adendorf, Dachgeschosswohnung zum Kauf

Objektdaten

Objekt ID
3179_2
Objekttypen
Dachgeschosswohnung, Wohnung
Adresse
21365 Adendorf
Etage
EG
Wohneinheiten
4
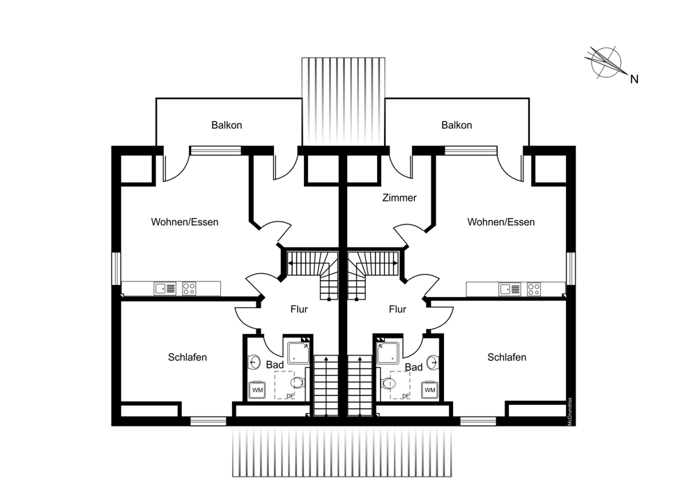
Wohnfläche ca.
59 m²
Nutzfläche ca.
10 m²
Zimmer
2,5
Schlafzimmer
1
Badezimmer
1
Balkone
1
Heizungsart
Fußbodenheizung
Wesentlicher Energieträger
Luft/Wasser Wärmepumpe
Stellplätze gesamt
1
Stellplatz
6.500 EUR (Anzahl: 1)
Verfügbar ab
nach Vereinbarung
Käufer­provision
3 % inkl. gesetzlicher USt.
Kaufpreis pro m²
5.050,85 EUR
Kaufpreis
298.000 EUR

Ihr Ansprechpartner:

Tobias Schmidt

Objekt ID: 3179_2

Objekt­beschreibung

Beschreibung

Moderne Eigentumswohnungen in attraktiver Lage von Adendorf

Die Wohnungen bieten Wohnflächen von ca. 59 m² bis ca. 88 m² und überzeugen durch helle, großzügig geschnittene Grundrisse mit vielfältigen Gestaltungsmöglichkeiten. Jede Wohnung verfügt über eine Terrasse oder einen Balkon in angenehmer Südwest-Ausrichtung und lädt zu entspannten Stunden im Freien ein.

Die offenen Wohn- und Essbereiche schaffen ein modernes Wohngefühl und ermöglichen den direkten Zugang zu Terrasse oder Balkon.

Ausstattungsmerkmale:

Modernes Design und nachhaltige Materialien in energieeffizienter Bauweise

Fußbodenheizung in allen Räumen

Hochwertiger Design-Bodenbelag sowie moderne Fliesen

Bodengleicher, frei begehbarer Duschbereich

Großzügige Fensterflächen für optimale Lichtverhältnisse

Elektrische Rollläden

BzA für KfW-55-Förderung liegt vor

Die Wohnungen eignen sich sowohl zur Eigennutzung als auch als attraktive Kapitalanlage.

Für weitere Informationen oder zur Vereinbarung eines Besichtigungstermins auf dem Baugrundstück stehen wir Ihnen gerne zur Verfügung. Kontaktieren Sie uns noch heute, um sich diese modernen Eigentumswohnungen in gefragter Lage von Adendorf zu sichern.

Lage

Ihre neue Wohnung befindet sich in ruhiger und zugleich zentraler Lage von Adendorf im Landkreis Lüneburg. Einkaufsmöglichkeiten, Ärzte, Apotheken sowie weitere Einrichtungen des täglichen Bedarfs sind in unmittelbarer Nähe vorhanden.

Schulen und Kindergärten sind fußläufig erreichbar und unterstreichen die familienfreundliche Umgebung. Die Verkehrsanbindung ist sehr gut: Die Autobahn ist in wenigen Minuten erreichbar, eine Bahnanbindung befindet sich in Planung. Die Hansestadt Lüneburg sowie Hamburg sind dadurch schnell angebunden.

Zahlreiche Freizeitangebote wie Golfanlage, Eislaufhalle, Schwimmbad, Fitnessstudios, Restaurants und weitere Freizeitmöglichkeiten sorgen für eine hohe Lebensqualität.

Die Lage verbindet naturnahes Wohnen mit einer ausgezeichneten Infrastruktur und bietet damit ideale Voraussetzungen für Eigennutzer und Kapitalanleger gleichermaßen.


Weitere interessante Wohnungen zum Kauf

21337 Lüneburg Details

Moderne 3-Zimmerwohnung an der Ilmenau

21365 Adendorf Details

Sonnenseite von Adendorf – Grüne Mitte 28!

Kontakt

SALLIER Immobilien e.K.
Auf dem Meere 47
21335 Lüneburg

Tel: 04131 24200
Fax: 04131 2420-10
immobilien@sallier.de

Schreiben Sie uns

    * Pflichtfelder