Skip to main content Skip to footer content

Offene Besichtigung 13.03. um 15 Uhr

21339 Lüneburg, Terrassenwohnung zum Kauf

Objektdaten

Objekt ID
1552_21
Objekttypen
Terrassenwohnung, Wohnung
Adresse
21339 Lüneburg
Wohnfläche ca.
110 m²
Zimmer
4
Schlafzimmer
3
Badezimmer
1
Separate WC
1
Terrassen
1
Heizungsart
Fußbodenheizung
Wesentlicher Energieträger
Luft/Wasser Wärmepumpe
Baujahr
2024
Zustand
Erstbezug
Stellplätze gesamt
1
Stellplatz
10.000 EUR (Anzahl: 1)
Verfügbar ab
nach Vereinbarung
Kaufpreis pro m²
5.036,36 EUR
Kaufpreis
554.000 EUR

Ihr Ansprechpartner:

Sabine Wenzel

Objekt ID: 1552_21

Objekt­beschreibung

Beschreibung

Offene Besichtigung 13.03. um 15 Uhr - Schomakerstraße 62-64, Lüneburg. Wir freuen uns auf Sie!

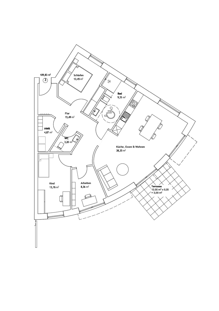
Erstbezug: Moderne 4-Zimmer-Erdgeschosswohnung mit Gartenanteil und eigenem Eingang

Diese hochwertig ausgestattete 4-Zimmer-Erdgeschosswohnung bietet auf ca. 110 m² Wohnfläche modernen Wohnkomfort in stadtnaher Lage mit kurzen Wegen in die Lüneburger Innenstadt.

Der großzügige Wohn- und Essbereich mit offener Küche bildet das Herzstück der Wohnung und schafft ein zeitgemäßes Raumgefühl. Bei Bedarf kann die Küche durch eine Wand vom Wohnbereich abgetrennt werden. Von hier aus gelangen Sie auf die Terrasse mit angrenzendem Gartenanteil.

Die Wohnung überzeugt durch ihre durchdachte Ausstattung und den hohen energetischen Standard: Fußbodenheizung, Luft-Wärmepumpe sowie Holzfenster mit 3-fach-Verglasung sorgen für Effizienz und Wohnkomfort. Edler Parkettboden unterstreicht den hochwertigen Charakter.

Das große Badezimmer verfügt über eine bodengleiche Dusche und ein Fenster. Zusätzlich stehen ein Gäste-WC sowie ein Hauswirtschaftsraum mit Waschmaschinenanschluss zur Verfügung. Die Wohnung ist barrierefrei erreichbar und verfügt über einen eigenen Hauseingang.

Ein Außenstellplatz kann für 10.000 € erworben werden; die Vorbereitung für eine Wallbox ist bereits vorhanden.

Eine moderne Stadtwohnung für Eigennutzer oder Familien, die Wert auf Qualität, Energieeffizienz und eine gute Anbindung legen.

Lage

Die 4-Zimmer-Erdgeschosswohnung mit Garten befindet sich im Lüneburger Stadtteil Kreideberg. Der Stadtteil zählt zu den etablierten und gefragten Wohnlagen der Hansestadt und überzeugt durch seine gewachsene Struktur sowie die gute infrastrukturelle Anbindung.

In unmittelbarer Umgebung befinden sich zahlreiche Einkaufsmöglichkeiten für den täglichen Bedarf, Bäckereien, Apotheken sowie ärztliche Versorgung. Auch Kindergärten und Schulen sind gut erreichbar und machen den Standort besonders attraktiv für Familien.

Die Anbindung an den öffentlichen Nahverkehr ist sehr gut, sodass sowohl die Lüneburger Innenstadt mit ihrer historischen Altstadt, vielfältigen Gastronomie und dem umfangreichen Einzelhandel als auch weitere Stadtteile bequem erreichbar sind. Mit dem Fahrrad oder dem Auto gelangt man in wenigen Minuten ins Zentrum.

Darüber hinaus bietet der Kreideberg verschiedene Grünflächen und Freizeitmöglichkeiten, die den Wohnwert zusätzlich erhöhen. Die Lage verbindet eine gute Erreichbarkeit aller wichtigen Einrichtungen mit urbanem Wohnkomfort.


Weitere interessante Wohnungen zum Kauf

21423 Winsen Luhe Details

Schicke 2-Zimmer-Wohnung

21337 Lüneburg / Lüne-Moorfeld Details

Ruhige 3-Zimmer-Wohnung Nähe Kloster Lüne

Kontakt

SALLIER Immobilien e.K.
Auf dem Meere 47
21335 Lüneburg

Tel: 04131 24200
Fax: 04131 2420-10
immobilien@sallier.de

Schreiben Sie uns

    * Pflichtfelder